alt

Tarjous PyroBurn Alpha PLUS 30 

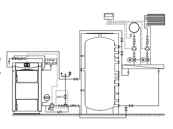
1 kpl. BURNiT PyroBurn Alpha PLUS 30 käänteispalokattila 30 kW

BURNiT PyroBurn Alpha PLUS 30 manual

1 kpl. H-savukaasutermostaatti 50 – 300 °C

1 kpl. BVTS jäähdytysventtiili 1,3 m, 97 °C

1 kpl. Eristetty 1500 l ovaalivaraaja, sisään rakennetulla käyttöveden kierukalla 10 m

1 kpl. Käyttöveden termostaattinen sekoitusventtiili 35-65°C

1 kpl. Latauspumppupaketti Laddomat 21-60, 72 ºC, R32

1 kpl. Paisunta-astia VRV 200 l

1 kpl. Lämpöparoni-sähkölämmityselementti 6 kW, 435 mm

1 kpl. Tech i-2 -lämmönsäädin kahdelle piirille

2 kpl. TECH lämmityspiirin 3-tie sekoitusryhmä

1 kpl. Rahti Suomeen

Hinta yhteensä: xxxx eur  (sis. ALV:in )

Myyntiehdot ja takuuehdot löydät:
https://lvi123.fi/tilausohjeet

 alt

Käänteispalokattilat, puukaasukattilat, alapalokattilat, PUUKATTILAT